No. :
CRT centrifugal fan
Retail Price
Market Price
Keywords:
Donwload:
Weight
Inventory
隐藏域元素占位
- Product Description
-
Structural features
It can be make of sheet steelepoxi-paint, stainless steel;
The impeller is desiqned for backforward impeller, so it has large volume and low noise and not over loading;
The fan is direct connection, so it is easy to installation and repairing;
Modelrange:no.280-710,9numbersin total
Air volumerange:1200-29000m³/h
Application: lt is suitable for ventilation in factories and buildings
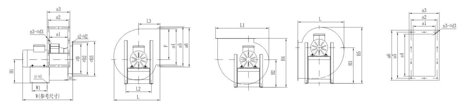
Dimensions

Model
W
W1
L
L1
L2
L3
n1-0dl
H1
H2
H3
H4
H5
∅D
∅D2
∅D3
n2-0d2
a1
a2
a3
a4
a5
a6
n3-0d3
F
CRT280
517
160
456
535
235
210
4-010
233
274
362
484
565
280
310
340
6-∅8
200
230
260
360
390
420
10-08
302
CRT315
558
180
513
597
235
237
4-012
261
310
401
547
629
315
345
375
6-∅8
223
254
283
405
435
465
10-08
340
CRT355
617
190
577
669
265
267
4-012
290
345
449
612
704
355
390
420
8-∅8
247
278
307
453
483
513
10-08
384
CRT400
719
210
649
750
340
300
4-012
327
389
503
689
790
400
435
465
8-08
274
304
334
507
537
567
10-010
433
CRT450
618
130
731
840
340
338
4-012
364
434
558
772
881
450
485
515
8-08
308
338
368
569
600
629
12-010
487
CRT500
681
170
795
935
350
353
4-014
403
479
615
832
935
500
535
570
12-∅10
345
376
405
638
668
698
12-∅10
538
CRT560
759
180
907
1040
428
421
4-016
484
567
717
988
1121
560
595
630
16-∅10
383
414
443
715
745
775
16-010
606
CRT630
916
240
1020
1165
460
474
4-016
534
627
793
1101
1246
630
670
700
16-∅10
433
464
493
800
830
860
16-∅10
682
Performance Chart
Model
Rotate Speed
(r/ min)
Air Volume
(m³/h)
Static Pressure
(Pa)
Full Pressur
(Pa)
Frame Size
Power
(kW)
Voltage (V)
Frequency
(Hz)
Noise
dB(A)
Weight
(kg)
CRT280
1420
1200
245
261
71M1
0.25
380
50
58
22
1556
194
221
2000
114
158
2356
18
79
2850
1956
1040
1082
90S
1.5
380
50
78
30
2667
910
988
3378
688
814
4089
401
585
CRT315
1420
1350
318
330
71M1
0.25
380
50
61
29
1750
260
280
2250
168
200
2650
55
100
2850
2200
1339
1370
90L
2.2
380
50
81
40
3000
1192
1250
3800
938
1030
4600
605
740
CRT355
1420
1800
396
410
71M
0.37
380
50
64
35
2200
349
370
2800
247
280
3500
98
150
2850
4000
1502
1570
100L
3
380
50
85
52
5000
1193
1300
5800
927
1070
6500
600
780
CRT400
1420
2500
493
510
80M1
0.55
380
50
67
44
3000
476
500
4500
246
300
5000
183
250
2850
6000
1754
1850
132S1
5.5
380
50
88
82
7000
1519
1650
8500
1108
1300
9500
710
950
CRT450
1450
5000
534
580
90S
1.1
380
50
70
55
5600
443
500
6300
328
400
6800
216
300
CRT500
1420
5000
768
800
90L
1.5
380
50
72
68
6000
705
750
8000
499
580
9500
286
400
CRT560
1420
9200
822
880
100L2
3
380
50
76
92
10000
752
820
12000
502
600
14000
217
350
CRT630
1420
16000
898
1000
132S
5.5
380
50
82
132
18000
521
650
20500
372
540
21800
220
410
960
8000
534
560
100L
1.5
380
50
73
102
9000
468
500
10000
410
450
12000
242
300
CRT710
1420
22000
1122
1250
160M
11
380
50
88
196
25000
784
950
27500
512
715
29000
514
580
960
14000
458
510
132S
3
380
50
79
136
16000
422
490
18000
294
380
20000
94
200
Related Products
Product Information
Fill in your phone number and email information, and we will contact you in time to solve your problem as soon as possible.